WORKS実績紹介
“子育て中でも散らからない”を叶える収納計画

小さなお子様がお二人いらっしゃるご家庭でも、日々の忙しさの中で無理なく片付けが続けられるよう、設計の段階から収納の場所をしっかりと計画しました。その結果、引っ越し後すぐに快適な暮らしを始められる住まいを実現しました。
お客様情報
神奈川県
戸建て住宅
・新築収納プランニング
・引越し収納サポート
サポート期間 約1年
Before(ビフォー)
以前の住まいでは、リビングまわりにおもちゃが集まり、片付けてもすぐに散らかってしまう状態が日常とのことでした。
「出しては片付け」の繰り返しで、すっきりとした空間を保つことが難しく、特に子育て中の忙しい生活の中では大きな悩みのひとつだったそうです。
そこで新居では、リビング・ダイニングが集まる1フロアで、家族全員が快適に過ごせる空間にしたいというご希望がありました。
さらに、家事動線も整えて、くつろぎと使いやすさを両立させたいという思いから、設計段階から収納計画のご相談・ご依頼をいただきました。
ご提案とサポート内容
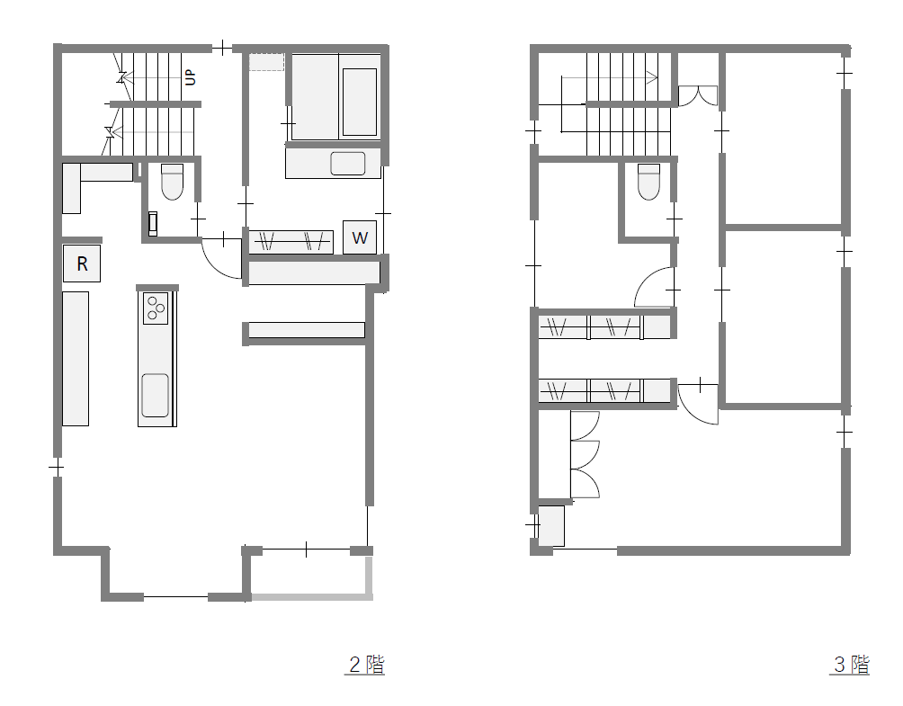
リビング近くの大容量収納で「散らからない」を仕組み化
→小さいお子様でも片付けやすい高さと動線に配慮。絵本・おもちゃ・学用品の“定位置”を明確化。
パントリーの位置を最適化し、キッチン×ダイニングを横並びに
→家事動線を短縮。配膳・片付け・ストック管理が一筆書きで完結。
洗面・ランドリー・脱衣をゆるやかにつなぐ設計
→視線の向きと動作を設計に反映。扉を最小限にして同一空間でも使いやすく、建具コストも抑制。

After(アフター)
子育て中のご家族の新居計画を、設計段階からトータルでサポートしました。特に重視したのは、「家族みんなが自然と片付けられる仕組み」です。
リビングには“大きな隣接収納”を設け、日々の出し入れを最短化。この収納のおかげで、リビングはいつもスッキリとした状態を保てます。また、キッチンはダイニングと横並びに配置し、パントリーの位置を見直すことで、配膳・片付け・補充が一直線に行える動線に整えました。洗面・ランドリー・脱衣はひと続きの空間にしながら、視線と動きを計算した配置を採用。扉を増やさずに済むため、コストダウンにもつながっています。さらに、収納用品に合わせて造作したランドリーカウンターで、毎日の家事が“出しっぱなしにならない”流れを実現しました。お子様の成長後を見据えた個室配置も取り入れ、長く心地よく整う住まいを目指した計画です。






お客様の声
自然と物を置いてしまう場所や溢れやすい箇所を指摘いただき、そうならない収納プランをご提案くださいました。どこに何を収納すれば良いか、生活様式に合わせて設計段階からお手伝いしていただけた点がとても良かったです。以前の住まいと比べて、床に物を置かなくなり、子どもも自分で片付けをするように。常に綺麗な空間で心も穏やかに。
友人に『どうしてこんなに綺麗なの?』と言われるくらいで、来た人みんなが褒めてくれるので、ホームパーティを開きたくなります。
設計段階からいろんなご提案をいただき、引越しサポートで家全体を整えてもらったのでこの家の全てが気に入っていますが、中でも特に気に入っている点は、キッチンとランドリー+洗面・脱衣のエリアです。
家事がとてもしやすくなり、子供達も含めて大満足な家ができあがりました。引越し後すぐに生活が整ったのもとてもありがたかったです。ありがとうございました!
タグ一覧
実績をもっとたくさんご覧になりたい方は、
Instagramで随時更新しておりますのでそちらをご覧ください。




